Автомобили Chevrolet Trailblazer - инструкция пользователя по применению, эксплуатации и установке на русском языке. Мы надеемся, она поможет вам решить возникшие у вас вопросы при эксплуатации техники.
Если остались вопросы, задайте их в комментариях после инструкции.
"Загружаем инструкцию", означает, что нужно подождать пока файл загрузится и можно будет его читать онлайн. Некоторые инструкции очень большие и время их появления зависит от вашей скорости интернета.

359 . . .
Глава 4
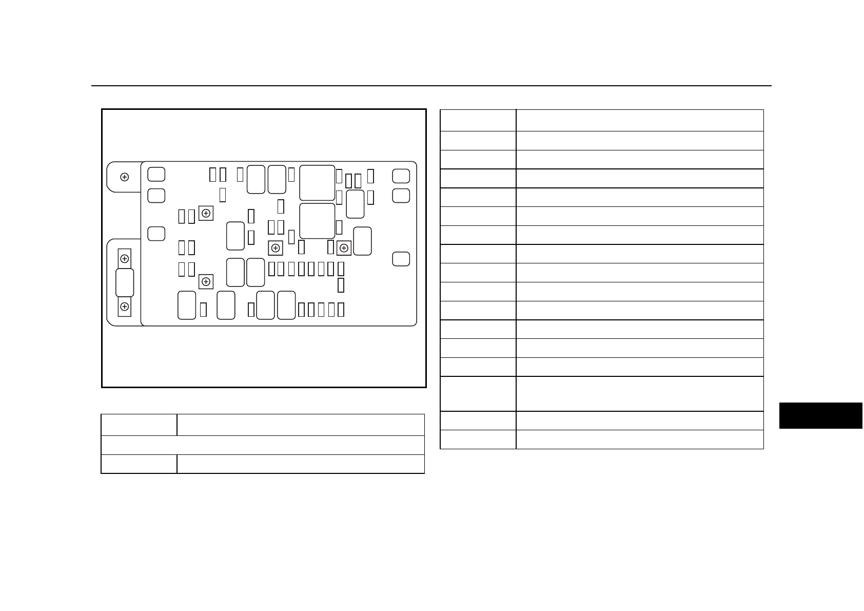
Двигатель V8
№
Защищаемые цепи
Предохранители
1
Не используется
2
Правая фара (дальний свет)
3
Правая фара (ближний свет)
4
Сигналы заднего хода прицепа
5
Левая фара (дальний свет)
6
Левая фара (ближний свет)
7
Очиститель ветрового стекла
8
Автоматическая раздаточная коробка
9
Омыватель ветрового стекла
10
Модуль управления силовым агрегатом, цепь B
11
Противотуманные фары
12
Стоп)сигналы
13
Прикуриватель
14
Катушки зажигания
15
Модуль управления трансмиссией; продувка
камеры улавливания паров топлива
16
Контроллер систем кузова; Зажигание "1"
17
Стартер
№
Защищаемые цепи
32
33
34
36
48
1
41
45
46
37
38
39
40
4
2
5
3
6
7
15
8
42
43
44
51
10
9
50
13
12
52
14
16
18
17
25
27
20
22
28
19
21
24
11
47
53
29
60
30
26
54
23
49
57
58
56
31
55
59
61
35
62
Содержание
- 2 Важные сведения о данном Руководстве по эксплуатации
- 3 Как пользоваться данным Руководством по эксплуатации
- 4 ) помогает определить расположение
- 5 • Глава 5: Устранение; ) запуск двигателя от аккумуляторной
- 6 Положение сиденья; Ремни безопасности; ПРЕДОСТЕРЕЖЕНИЕ; Важные меры безопасности
- 8 Подушки безопасности
- 10 Если вы оставляете свой автомобиль
- 11 • Удерживайте педаль тормоза нажатой; не увеличивайте; частоту вращения
- 12 Выпускная система
- 13 Автомобиль и вода
- 14 Вождение по холмистой местности; Загрузка автомобиля
- 16 Аккумуляторная батарея; Буксировка вашего автомобиля
- 17 Моторный отсек; Система охлаждения; не допускайте
- 18 Замена поврежденного колеса
- 19 Возможные неисправности систем
- 21 Глава; ? Приборы и органы управления; Приборы и органы управления на передней панели; Аудиосистема с приемником RDS и проигрывателем; Пр
- 22 Система предотвращения разряда аккумуляторной
- 24 Приборы и органы управления; ПРИБОРЫ И ОРГАНЫ
- 27 ПРИБОРНАЯ ПАНЕЛЬ; Индикатор включения дальнего
- 28 пробега
- 29 Указатель уровня топлива
- 30 Указатель давления моторного; Индикатор положения селектора; Сигнализаторы аварийного
- 33 ABS
- 36 ВНИМАНИЕ
- 38 Это нормальное явление.
- 41 Сигнализатор низкого уровня топлива; Как можно скорее заправьте бак топливом.
- 42 Сообщение; CHECK TIRE PRESSURE
- 43 Сигнализатор превышения скорости
- 45 ИНФОРМАЦИОННЫЙ ЦЕНТР
- 46 Кнопки информационного; Кнопка информации о поездке
- 48 Таймер сбросится на; Кнопка информации о топливе; Если на дисплее появляется надпись; LOW
- 49 Этот параметр нельзя обнулить.; • FUEL USED (Количество; Выберите параметр; FUEL USED
- 50 CHANGE ENGINE OIL
- 52 Персональные настройки
- 53 LOCK DOORS: WITH SPEED
- 54 UNLOCK FEEDBACK: LAMPS
- 56 PERIMETER LIGHTS: OFF; положения сиденья отключено); SEAT RECALL: AT KEY IN
- 57 SEAT RECALL: ON REMOTE
- 58 ARABIC
- 59 ESPANIOL; Сообщения информационного
- 60 давление воздуха в шинах)
- 61 CHECK WASHER FLUID; уровень омывающей жидкости); DRIVER DOOR AJAR; (Температура охлаждающей
- 62 автомобиля до тех пор,
- 63 PASSENGER DOOR AJAR; дверь переднего пассажира); REAR ACCESS OPEN; системы подушек безопасности); SERVICE BRAKE SYSTEM
- 64 SERVICE CHARGING SYS
- 65 STABILITRAK ACTIVE; Stabilitrak не готова); STABILITRAK OFF; (Система Stabilitrak
- 66 TIGHTEN FUEL CAP; ) При этом изменяется алгоритм; TURN SIGNAL ON
- 68 СИСТЕМА STABILITRAK; STABILITRAK NOT READY
- 69 • Stabilitrak On (система Stabilitrak; ) Система динамической стабилизации
- 70 ) Если система обнаружит чрезмерную; SERVICE STABILITRAK
- 73 РОЗЕТКИ
- 74 ПРИБОРЫ ОСВЕЩЕНИЯ; Главный переключатель
- 75 Поверните переключатель в положение
- 76 HEADLAMP DELAY; или; ACC
- 77 Регулятор яркости подсветки
- 78 Система подсветки; Система подсветки при посадке; • будет открыта какая)либо дверь; Система подсветки при высадке; Плафоны для чтения
- 79 Плафоны освещения салона
- 80 СИСТЕМА ОТОПЛЕНИЯ; Стандартная двухзонная; Регулятор скорости вращения
- 81 Поверните регулятор в положение
- 82 Удаление инея со стекол
- 83 Рециркуляция воздуха
- 84 Автоматическая двухзонная; или поверните любой; AUTO
- 85 РЕГУЛИРОВАНИЕ ТЕМПЕРАТУРЫ
- 87 АВТОМАТИЧЕСКИЙ РЕЖИМ РАБОТЫ; Установите желаемую комфортную; и удерживайте ее нажатой в течение
- 88 РУЧНОЙ РЕЖИМ РАБОТЫ; Последовательно нажимайте на кнопку
- 91 Вентиляционные решетки
- 92 Электрообогреватель заднего
- 93 кондиционирования воздуха
- 94 показан выбранный режим.; АУДИОСИСТЕМА И ЧАСЫ
- 95 • Аудиосистема с приемником RDS и
- 96 RDS
- 97 Органы управления
- 102 BAND
- 106 Нажмите одну из кнопок памяти и; Текстовые сообщения; При каждом нажатии на кнопку; INFO; на
- 107 Проигрыватель аудиокассет
- 108 Если на дисплее появляется сообщение
- 111 Проигрыватель компакт>дисков
- 112 Вставляйте диски по одному.; FWD; REV
- 115 Калибровка радиоприемника; CAL ERR; Система защиты от кражи; Индикатор системы будет мигать.; LOCKED; Регулировка громкости сигнала
- 116 АУДИОСИСТЕМА С; Часы; Установка местного времени
- 124 Прием радиостанций RDS
- 128 >дисковый проигрыватель
- 129 LOAD
- 135 SONG LIST; Вы услышите одиночный звуковой сигнал.; Извлечение компакт?дисков; На дисплее появится сообщение; EJECT; CHECK CD
- 137 АУДИОСИСТЕМА
- 142 Поиск радиостанций; до тех пор, пока на дисплее не; SCAN
- 145 Поиск по типу программы:; SEEK TYPE; Нажмите на кнопку
- 148 Проигрыватель CD
- 150 or
- 152 Воспроизведение компакт>; • Убедитесь в том, что вы записали файлы
- 153 • Рекомендуется упорядочить записи
- 155 Файловая система и имена файлов; READING
- 156 . Для быстрого перехода к
- 161 Включение питания
- 162 Нажмите на кнопку
- 163 КНОПКИ УПРАВЛЕНИЯ
- 164 Нажмите на любую сторону клавиши; , и радиоприемник найдет следующую; АНТЕННА
- 165 РЕГУЛИРОВКА ГРОМКОСТИ; Система имеет два уровня громкости гонга:; NORMAL CHIME; при включенном; НАВИГАЦИОННАЯ
- 166 Многофункциональный рычаг; Этот рычаг; Звуковой сигнал
- 167 Не используйте; самое высокое положение
- 168 МНОГОФУНКЦИОНАЛЬНЫЙ; Указатели поворота
- 169 Переключатель дальнего/
- 170 • Система Stabilitrak; Включение системы круиз?контроля; контроля в среднее положение.
- 171 Выключение системы круиз?контроля
- 172 • Увеличьте скорость движения
- 173 • Нажмите кнопку, расположенную
- 174 Очистители ветрового стекла
- 175 Омыватель ветрового стекла
- 177 ЗЕРКАЛА; Наружные зеркала заднего вида
- 178 Внутреннее зеркало заднего
- 179 вида нажмите на кнопку; SW; NW; направление движения.
- 180 Калибровка компаса; • Для калибровки компаса на дисплее; CAL; • Выбрав безопасное место, медленно; Магнитное склонение компаса
- 181 Нажмите и удерживайте кнопку; TEMP; COMP
- 183 до тех
- 184 Нажмите на кнопку; Нажимайте на кнопку
- 185 Туалетные зеркала; ОКНА
- 186 Электрические; ON
- 187 ДВЕРИ; • Маленькие дети, которые залезают; • Если двери не заперты, возрастает
- 188 Механические замки дверей
- 189 ЗАПИРАНИЕ ДВЕРЕЙ С ЗАДЕРЖКОЙ; Для выбора режима; и обратно в положение; LOCK
- 191 Автоматическое отпирание
- 192 Нажимайте на отпирающую часть; Блокировка задних замков
- 193 ЗАДНЕЕ БАГАЖНОЕ
- 194 Вставьте отвертку в отверстие; Хранение багажа в багажном; ПЕТЛИ ДЛЯ КРЕПЛЕНИЯ ГРУЗА
- 195 ОТДЕЛЕНИЕ ДЛЯ ХРАНЕНИЯ В ПОЛУ; Для снятия крышки багажного отсека:; Шторка заднего багажного; Установка; Нажмите на противоположный конец
- 196 Снятие; Для наматывания шторки на барабан
- 197 ПОТОЛОК И КРЫША; Потолочная консоль; Сдвижные солнцезащитные козырьки
- 198 Вентиляционный люк в крыше
- 199 Запрещается
- 200 РАЗМЕЩЕНИЕ МЕЛКОГО; Центральная консоль; • передние и задние подстаканники; Перчаточный ящик
- 201 Удерживающая сетка; ПЕПЕЛЬНИЦА
- 202 СИСТЕМА СОХРАНЕНИЯ
- 203 ФУНКЦИЯ ЗАПОМИНАНИЯ
- 204 на одну из кнопок памяти,; SEAT RECALL
- 205 EASY EXIT SEAT
- 206 ? Сиденья и удерживающие системы; Направляющие скобы плечевой лямки; Си
- 207 Сиденья и удерживающие системы; РЕГУЛИРОВКА СИДЕНИЙ; Ручная регулировка сидений
- 208 Глава 2
- 209 или водитель
- 210 Регулировка поясничной опоры
- 211 Подголовники
- 212 Заднее сиденье
- 214 РЕМНИ БЕЗОПАСНОСТИ
- 215 Для пристегивания ремня безопасности:
- 216 Для отстегивания ремня безопасности:
- 218 Выньте направляющую скобу из ее
- 219 Сожмите края ремня безопасности и; УДЛИНЕНИЕ РЕМНЯ
- 220 ПОЛЬЗОВАНИЕ РЕМНЯМИ
- 221 START
- 222 в течение нескольких секунд будет; ДОПОЛНИТЕЛЬНЫЕ
- 223 ПОДУШКИ БЕЗОПАСНОСТИ
- 229 Система определения; • Правое переднее сиденье в течение
- 230 • Сиденье переднего пассажира занимает
- 236 ДЕТСКИЕ УДЕРЖИВАЮЩИЕ
- 242 Крепления для детских; Данная система имеет скобы; A B
- 243 Детское кресло может иметь одиночную
- 245 • Если сиденье не имеет подголовника,
- 247 Найдите фиксирующие скобы в месте
- 248 Потяните детское кресло во всех
- 249 ? Начало движения и рекомендации по вождению автомобиля; Система Passlock; Руководство по вождению; Перемещение селектора автоматической
- 250 Индикаторы износа тормозных колодок дисковых; Установка снежного плуга или другого подобного
- 251 Глава 3; ПЕРИОД ОБКАТКИ; КЛЮЧИ
- 252 Начало движения и рекомендации по вождению автомобиля
- 253 к вашему дилеру для проведения ремонта.; СИСТЕМА; Для активации системы:
- 254 ALARM WARNING; Для проверки системы:
- 255 ДИСТАНЦИОННОЕ; Управление системой; Отпирание дверей; Запирание дверей
- 256 Сигнал тревоги; Радиус действия пульта; • Возможно, вы находитесь слишком
- 257 Замена элемента питания; KEYFOB; Для замены элемента питания:
- 258 Настройка пультов; ЗАМОК ЗАЖИГАНИЯ; (Вспомогательные потребители
- 259 в положение; запустите двигатель и отпустите ключ.; Система сохранения питания
- 260 ИНСТРУКЦИИ ПО; во время движения автомобиля.
- 261 Компьютерная система; Проблемы, возникающие; после; Если двигатель не запускается
- 262 Запуск двигателя в холодную погоду; и удерживайте его в этом; в течение еще пяти секунд.
- 263 РЕГУЛИРУЕМЫЕ ПЕДАЛИ
- 264 ТРАНСМИССИЯ; Автоматическая коробка
- 265 нажать педаль тормоза до упора.
- 267 при
- 268 СИСТЕМА ПОЛНОГО; • Привод задних колес
- 270 Переведите рычаг селектора
- 272 РУКОВОДСТВО; Прежде чем пускаться в путь
- 273 Загрузка автомобиля для; • Наиболее тяжелые вещи следует; • Багаж, уложенный в грузовом
- 274 Охрана окружающей среды; • Всегда пользуйтесь грунтовыми; Поездки в удаленные места
- 275 Обучение вождению; • Вы быстрее приближаетесь к предметам
- 276 Вождение по холмистой
- 277 Движение на подъем
- 278 • Снижайте скорость движения, когда вы
- 279 Движение по спуску; • Насколько крут этот спуск? Сможете ли
- 280 Движение поперек склона; • Холм, который можно безопасно
- 281 Двигайтесь с пониженной скоростью.
- 283 ПАРКОВКА АВТОМОБИЛЯ; Перемещение селектора
- 284 , не нажимая на кнопку; а затем отпустите стояночный тормоз.
- 285 Если вы не можете перевести селектор; СЦЕПЛЕНИЕ КОЛЕС; не воздействуйте; на органы управления; Система Stabilitrak
- 286 Блокировка заднего; РУЛЕВОЕ УПРАВЛЕНИЕ; Рулевое управление; ТОРМОЗНАЯ СИСТЕМА
- 287 Индикаторы износа тормозных
- 289 Стояночный тормоз; ПОДВЕСКА
- 290 ЗАГРУЗКА АВТОМОБИЛЯ
- 291 Табличка с информацией; • на задней стойке проема двери водителя; Сертификационная табличка/
- 292 УСТАНОВКА СНЕЖНОГО
- 293 БУКСИРОВКА ПРИЦЕПА; • Проверьте выпускную систему вашего
- 294 • Запрещено превышать максимальную
- 296 Сцепные устройства; • Если вы собираетесь буксировать
- 297 Страховочные цепи; . Запрещается подключать
- 298 Парковка на уклонах; Если автомобиль стоит по направлению
- 299 Электропроводка прицепа; Семипроводной жгут проводки; поворота
- 300 Четырехпроводной жгут проводки; Техническое обслуживание
- 301 БУКСИРОВКА ВАШЕГО; Автомобили с приводом на одну ось; Автомобили с полным приводом
- 303 NEUTRAL
- 304 ? Ремонт и техническое обслуживание; Рекомендованные жидкости; Контроль технического состояния шин; Электрические предохранители и автоматы защиты; Блок электрических предохранителей
- 305 Ремонт и техническое обслуживание
- 306 Глава 4
- 308 Заправка бака топливом
- 309 TIGHTEN; (Закройте крышку топливного
- 311 РЫЧАГ ОТКРЫВАНИЯ
- 312 МОТОРНЫЙ ОТСЕК; GND
- 314 Моторное масло; Припаркуйте автомобиль на ровной
- 315 Снова выньте масляный щуп; Вновь вставьте масляный щуп
- 316 Выбор качества моторного масла; FOR
- 318 Присадки к моторному маслу
- 319 CHANGE; Когда сигнализато погаснет, поверните
- 320 даже в; может; . При использовании такой смеси
- 321 FULL COLD; уровень охлаждающей жидкости до нормы.
- 322 попадания охлаждающей
- 323 Не увеличивайте
- 324 HOT; горячая, или в зоне с надписью; если жидкость холодная.; в горячем состоянии
- 325 При обратной установке щупа; Рабочая жидкость раздаточной; Для проверки уровня рабочей жидкости:
- 326 Масло для картера переднего; Масло для картера заднего
- 327 Жидкость гидроусилителя; FULL
- 329 MIN
- 330 CHECK; • Не добавляйте воду в готовую
- 331 • Данная аккумуляторная батарея
- 332 Воздухоочиститель/воздушный; Для снятия и замены воздушного фильтра:
- 333 РЕКОМЕНДОВАННЫЕ ЖИДКОСТИ И СМАЗОЧНЫЕ МАТЕРИАЛЫ; ПРИМЕНЕНИЕ
- 334 Аэрозольная смазка Lubriplate; РЕКОМЕНДОВАННЫЕ ЖИДКОСТИ И СМАЗОЧНЫЕ МАТЕРИАЛЫ (ПРОДОЛЖЕНИЕ)
- 335 ШИНЫ; • Не перегружайте шины вашего; • Не допускайте снижения давления; ДАВЛЕНИЕ ВОЗДУХА В ШИНАХ
- 336 Проверка давления воздуха в шинах
- 337 Вновь проверьте давление воздуха в шине.; Монитор давления воздуха
- 339 SERVICE TIRE MONITOR SYSTEM; • Возможно, перестал функционировать
- 340 • Оригинальные шины вашего автомобиля
- 341 В течение трех секунд четыре раза
- 342 Доведите давление воздуха во всех; КОНТРОЛЬ ТЕХНИЧЕСКОГО; • Замена поврежденного колеса
- 344 • Протектор или боковины шины имеют
- 346 устанавливать цепи
- 347 КОЛЕСА; Балансировка колес и
- 348 Замена колес
- 350 ИДЕНТИФИКАЦИОННЫЙ; • на шасси и/или раме с правой стороны
- 351 ИДЕНТИФИКАЦИОННАЯ; • идентификационный номер автомобиля; ЭЛЕКТРИЧЕСКИЕ
- 353 Блок предохранителей в моторном отсеке; Двигатель L6
- 354 Защищаемые цепи
- 355 Реле
- 356 Двигатель V8
- 359 Блок предохранителей под задним сиденьем
- 361 ЗАМЕНА ЛАМП
- 362 ХАРАКТЕРИСТИКИ ЛАМП НАКАЛИВАНИЯ ДЛЯ ЗАМЕНЫ
- 363 ТЕХНИЧЕСКИЕ ХАРАКТЕРИСТИКИ И ЗАПРАВОЧНЫЕ ЕМКОСТИ; Технические характеристики агрегатов; * Номер детали AC Delco
- 364 Технические характеристики агрегатов (продолжение)
- 365 Заправочные емкости (приблизительные значения); Автоматическая коробка передач *; МАКСИМАЛЬНАЯ СКОРОСТЬ АВТОМОБИЛЯ
- 366 ? Устранение неисправностей в пути; Запуск двигателя от аккумуляторной батареи; Раскачивание автомобиля вперед)назад
- 367 Устранение неисправностей в пути; ЗАПУСК ДВИГАТЕЛЯ
- 368 Глава 5; Поставьте оба автомобиля достаточно; коробки передач в положение
- 369 Откройте капоты автомобилей; Вынесенный
- 370 Присоедините другой конец
- 371 Запустите двигатель автомобиля; БУКСИРОВКА
- 372 ПЕРЕГРЕВ ДВИГАТЕЛЯ; Выключите кондиционер воздуха
- 373 (Полный при холодном
- 374 не
- 377 Долейте в радиатор охлаждающую; Установите на место и заверните
- 378 ЗАМЕНА
- 379 Вынимание комплекта; • Заднее сиденье (Дополнительное
- 380 установленное под днищем; Чтобы вынуть запасное колесо:
- 381 Когда колесо будет полностью опущено,
- 382 для переднего колеса,
- 383 Наденьте запасное колесо на ступицу.
- 384 Полностью опустите домкрат.
- 386 Хранение запасного колеса; ХРАНЕНИЕ ЗАПАСНОГО КОЛЕСА
- 387 Удлинитель рукоятки домкрата
- 388 ХРАНЕНИЕ ДОМКРАТА
- 389 Этикетка с инструкциями
- 390 Сверните и уберите на место этикетку; Система вторичного крепления
- 391 Вращайте колесный ключ против
- 392 Продолжайте поднимать домкрат; Отсоедините рукоятку от домкрата
- 393 ) Поворачивайте колесный ключ
- 394 ЕСЛИ ВАШ АВТОМОБИЛЬ
- 395 Раскачивание автомобиля; Поверните рулевое колесо несколько; Крюки для вытаскивания
- 396 СИСТЕМА СБОРА
- 397 • Адреса
