AUX ASW-H18B4/LK-700R1 - Инструкция по эксплуатации

AUX ASW-H18B4/LK-700R1

Кондиционер AUX ASW-H18B4/LK-700R1 - инструкция пользователя по применению, эксплуатации и установке на русском языке. Мы надеемся, она поможет вам решить возникшие у вас вопросы при эксплуатации техники.

Если остались дополнительные вопросы — свяжитесь с нами через контактную форму.

1 Страница 1
2 Страница 2
3 Страница 3
4 Страница 4
5 Страница 5
6 Страница 6
7 Страница 7
8 Страница 8
9 Страница 9
10 Страница 10
11 Страница 11
12 Страница 12
13 Страница 13
14 Страница 14
15 Страница 15
16 Страница 16
17 Страница 17
18 Страница 18
19 Страница 19
20 Страница 20
21 Страница 21
22 Страница 22
23 Страница 23
24 Страница 24
25 Страница 25
26 Страница 26
27 Страница 27
Страница: / 27

Содержание:

  • Страница 2 – Содержание
  • Страница 14 – SLEEP
  • Страница 15 – TURBO
  • Страница 16 – Anti; Эксплуатация
  • Страница 23 – Гарантийный талон; ГАРАНТИЙНЫЙ
Загрузка инструкции

 

2019.12-1

"Загрузка инструкции" означает, что нужно подождать пока файл загрузится и можно будет его читать онлайн. Некоторые инструкции очень большие и время их появления зависит от вашей скорости интернета.

Краткое содержание

Страница 2 - Содержание

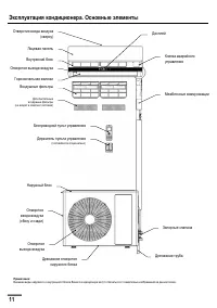
  Содержание Комплект поставки и монтажная схема . 01 Установка кондиционера . Меры предосторожности . 02 Установка кондиционера . 04 Эксплуатация кондиционера . Меры предосторожности . 09 Эксплуатация кондиционера . Основные элементы . 11 Эксплуатация кондиционера . Пульт дистанционного управления ...

Страница 14 - SLEEP

  Эксплуатация кондиционера . Пульт дистанционного управления 12 Пульт дистанционного управления Сторона излучателя сигнала 1   2     3 4     5   9   6   7   8 10     13     12   14   16   15   17 11    Представленное  изображение  относится  к  стандартному  пульту  ди - станционного  управления , ...

Страница 15 - TURBO

  Эксплуатация кондиционера . Пульт дистанционного управления При выключения кондиционера или повторном нажатии на кнопку режим будет выключен . 7. Кнопка iCLEAN ( Очистка ). Нажатие на кнопку при выключенном кондиционере , включает режим очистки внутреннего блока , на дисплее пульта высвечивается и...

Характеристики

Другие модели - Кондиционеры AUX

Все кондиционеры AUX