Страница 2 - СОДЕРЖАНИЕ; Благодарим Вас за выбор; CARES XC; совместимой с; Ariston; , разработанный и изготовленный
СОДЕРЖАНИЕ Общие положения ........................................................................ 3Рекомендации по монтажу ............................................................................ 3Правила безопасности................................................................................
Страница 3 - ОБЩИЕ ПОЛОЖЕНИЯ; Рекомендации по монтажу
/ 3 ОБЩИЕ ПОЛОЖЕНИЯ Рекомендации по монтажу Котел следует подключить к контурам отопления и горячего водоснабжения (ГВС), которые должны соответствовать техническим характеристикам котла. Строго запрещается использовать котел в целях, не указанных в данной инструкции. Производитель не несет ответств...
Страница 6 - ОПИСАНИЕ КОТЛА; Панель управления; Err
6 / ОПИСАНИЕ КОТЛА Панель управления 1 2 3 4 5 Дисплей Цифровые индикаторы:- состояние котла и уставка температуры ( °C ) - отображение кодов неисправностей ( Err ) - настройки менюЗапрос нажатия кнопки Reset (блокировка котла) Необходима техническая помощь Сигнализация наличия пламени Настройка реж...
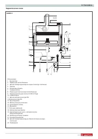
Страница 7 - Общий вид; ГВС; Размеры
/ 7 ОПИСАНИЕ КОТЛА Общий вид Обозначение1. Патрубок выхода продуктов сгорания2. Пневмореле3. Конденсатосборник4. Медный первичный теплообменник6. Датчик температуры на подаче в контур отопления7. Горелка8. Электроды розжига9. Теплообменник ГВС10. Газовый клапан11. Предохранительный клапан контура от...
Страница 9 - УСТАНОВКА; Предмонтажные проверки
/ 9 УСТАНОВКА Предмонтажные проверки Котел предназначен для нагрева воды до температуры ниже точки кипения, его следует подключить к контурам отопления и горячего водоснабжения (ГВС), которые должны соответствовать техническим характеристикам котла. Перед подключением котла выполните следующие опера...
Страница 10 - Гидравлические соединения; Остаточное давление при ΔT 20 °C; Предохранительный клапан; A. Патрубок подачи в контур отопления; Промывка контура отопления
10 / УСТАНОВКА 0 0,5 1 1,5 2 2,5 3 3,5 4 4,5 5 0 100 200 300 400 500 600 700 800 900 [mCE] [l\h] Гидравлические соединения На рисунке показана схема подключения трубопроводов воды и газа к котлу. Убедитесь, что максимальное давление в водопроводе не выше 0,6 МПа (6 бар); при превышении указанного зн...
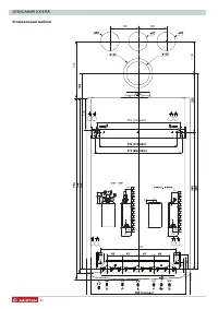
Страница 11 - Гидравлическая схема; CARES X; D E; воздухоотводчиком
/ 11 УСТАНОВКА Гидравлическая схема CARES X A B C D E 1 2 4 9 11 10 12 13 14 15 16 1817 19 21 20 22 23 8 5 7 6 Обозначения1. Вентилятор 2. Первичный теплообменник4. Датчик температуры воды на подаче в контур отопления5. Горелка6. Электроды розжига7. Газовый клапан8. Вторичный пластинчатый теплообмен...
Страница 12 - Подача воздуха и отвод продуктов сгорания
12 / УСТАНОВКА Подача воздуха и отвод продуктов сгорания Котел допускает установку типа B (подача воздуха из помещения) и типа C (подача воздуха снаружи). Во избежание попадания продуктов сгорания в систему воздуховодов тщательно выполните монтаж уплотнений в соответствии с данным руководством.Устан...
Страница 13 - S1 – подача воздуха S2 = отвод продуктов сгорания; Типы дымоходов/воздуховодов
/ 13 УСТАНОВКА Типы и длины трубопроводов подачи воздуха и отвода продуктов сгорания S1 – подача воздуха; S2 = отвод продуктов сгорания Тип газохода Максимальная длина дымохода/воздуховода, м Диаметры труб, мм CARES XC 15FF - CARES XC 18 FF - CARES XC 24 FF Диафрагма ø 41 Диафрагма ø 44 Без диафрагм...
Страница 14 - Подключение к электрической сети; Кабель электропитания; Подключение дополнительных устройств; внешних подключений и основной плате.; - Наружный датчик температуры; Подключение комнатного термостата; − Освободите с помощью отвертки фиксатор провода и; BUS; FLOOR
14 / УСТАНОВКА Подключение к электрической сети С целью обеспечения безопасности поручите квалифицированному специалисту тщательно проверить все электрические соединения котла.Производитель не несёт ответственности за ущерб, причиненный отсутствием надлежащего заземления или ненадлежащими параметрам...
Страница 15 - Электрическая схема; N L; Дисплей
/ 15 УСТАНОВКА Электрическая схема С целью обеспечения безопасности поручите квалифицированному специалисту тщательно проверить все электрические соединения.ПРОИЗВОДИТЕЛЬ НЕ НЕСЁТ ОТВЕТСТВЕННОСТИ ЗА УЩЕРБ, ПРИЧИНЕННЫЙ ОТСУТСТВИЕМ НАДЛЕЖАЩЕГО ЗАЗЕМЛЕНИЯ ИЛИ НЕНАДЛЕЖАЩИМИ ПАРАМЕТРАМИ СЕТИ ЭЛЕКТРОПИТАН...
Страница 16 - ПУСК В ЭКСПЛУАТАЦИЮ; Порядок пуска в эксплуатацию; Пос; Первый пуск в эксплуатацию
16 / ПУСК В ЭКСПЛУАТАЦИЮ Порядок пуска в эксплуатацию Подготовка к вводу в эксплуатацию Безопасность и работоспособность котла обеспечиваются только при условии его ввода в эксплуатацию специалистом, имеющим квалификацию в соответствии с действующими нормами и правилами. Электропитание− Убедитесь, ч...
Страница 17 - Проверка параметров газа; Нажмите кнопку; на дисплее появляется символ
/ 17 ПУСК В ЭКСПЛУАТАЦИЮ Проверка параметров газа С н и м и те п е р е д н ю ю к р ы ш к у к о тл а и о п у с т и те п а н е л ь управления. Проверка давления на входе1. Ослабьте винт «1» (рис. a) и вставьте соединительную трубку манометра в патрубок отбора давления. 2. Запустите котел на максимальн...
Страница 18 - Проверка мощности в режиме розжига; Давление газа в режиме отопления
18 / ПУСК В ЭКСПЛУАТАЦИЮ Вход в меню и изменение настроекМеню 2 - параметры котла Подменю 3 - параметр 1 (231).Максимальная тепловая мощность, устанавливаемая регулятором давления (модулятором) на газовом клапанеПодменю 2 - параметр 0 Режим плавного розжига (пониженное давление при розжиге) 220.Подм...
Страница 19 - Сводная таблица параметров по типам газа; CARES XC 10 FF; минуты
/ 19 ПУСК В ЭКСПЛУАТАЦИЮ Сводная таблица параметров по типам газа Переход на другой тип газа Котел может быть переоснащен с газа метана (G20) на жидкий газ (G30 - G31) или наоборот. Переоснащение котла должно выполняться квалифицированным специалистом с применением помощи специального комплекта.Поря...
Страница 20 - ЗАЩИТНЫЕ ФУНКЦИИ; Устройства защиты котла; Защитное отключение из-за низкого давления воды; - электронный блок управления; Отображение неисправностей; P1 = ПЕРВАЯ ПОПЫТКА РОЗЖИГА НЕУДАЧНА; Функция защиты от замерзания
20 / ЗАЩИТНЫЕ ФУНКЦИИ Устройства защиты котла Защита котла в случае возникновения неисправностей осуществляется с помощью автоматической диагностики электронным блоком управления, который выключает котел при необходимости. В случае выключения котла после такой проверки на дисплее отобразится код неи...
Страница 21 - Таблица кодов неисправностей
/ 21 ЗАЩИТНЫЕ ФУНКЦИИ Таблица кодов неисправностей Контур отопления 101 Перегрев 103 Нарушение циркуляции 104105106107 108 Недостаточное давление в контуре отопления (требуется подпитка) 110 Короткое замыкание или обрыв цепи датчика температуры в подающей линии контура отопления 112 Короткое замыкан...
Страница 22 - ЗОНА ТЕХНИЧЕСКОГО СПЕЦИАЛИСТА; Настройки, регулировки и диагностика; Параме; Кнопка «+» ОК для сохранения в памяти изменений; параметр; СЕРВИСНЫЙ КОД; нажать кнопку
22 / ЗОНА ТЕХНИЧЕСКОГО СПЕЦИАЛИСТА Настройки, регулировки и диагностика Котел дает возможность регулировать все параметры контура отопления и горячего водоснабжения. Использование параметров позволяет настроить котел и подключенные к нему дополнительные устройства так, чтобы обеспечить максимум комф...
Страница 24 - ТЕХНИЧЕСКОЕ ОБСЛУЖИВАНИЕ; Доступ к внутренним элементам; Перед работой с котлом отключите его электропитание
24 / ТЕХНИЧЕСКОЕ ОБСЛУЖИВАНИЕ Доступ к внутренним элементам Перед работой с котлом отключите его электропитание (переведите внешний двухполюсный выключатель в положение OFF (ВЫКЛ)) и перекройте газовый кран. Для доступа к внутренним элементам котла выполните следующее: 1. Ослабьте два винта (a), пот...
Страница 25 - Операции по опорожнению и использованию антифриза
/ 25 ТЕХНИЧЕСКОЕ ОБСЛУЖИВАНИЕ Техническое обслуживание (ТО) – важная составляющая обеспечения безопасности, эффективной работы котла и залог его длительной эксплуатации. Производите ТО в соответствии с действующими нормами и правилами, а также требованиями производителя, не реже 1 раза в год. Регуля...
Страница 26 - Символы на заводской табличке; Обучение пользователя
26 / ТЕХНИЧЕСКОЕ ОБСЛУЖИВАНИЕ 1. Марка2. Производитель3. Модель – Серийный номер (*)4. Торговый код5. № утверждения6. Страна эксплуатации – категория газа7. Заводская настройка газа8. Тип установки9. Электрические данные10. Максимальное давление санитарной горячей воды11. Максимальное давление систе...
Страница 27 - ТЕХНИЧЕСКАЯ ИНФОРМАЦИЯ
/ 27 ТЕХНИЧЕСКАЯ ИНФОРМАЦИЯ Общие свед ени я Модель CARES XC 10 FF 15 FF 18 FF 24 FF Тип котла C12-C22-C32-C42-C52-C62-C82- B22-B22p-B32 Энерг ет ические харак терис тики Номинальная тепловая мощность для контура отопления, не более/не менее (Hi) кВт 11,0 / 11,0 15,0 / 11,0 19,0 / 11,0 25,8 / 11,0 Н...
Страница 29 - СВЕДЕНИЯ О ПРОДАЖЕ
/ 29 ТЕХНИЧЕСКАЯ ИНФОРМАЦИЯ 1. ОБЩИЕ СВЕДЕНИЯ Наименование и адрес производителя ARISTON THERMO SPAViale Aristide Merloni 45, 60044 Fabriano (AN), Италия Модель Место для наклейки Серийный номер Назначение Данное оборудование разработано в соответствии с европейскими стандартами качества и отвечает ...
Страница 30 - ВВОД В ЭКСПЛУАТАЦИЮ; ГАРАНТИЙНЫЕ ОБЯЗАТЕЛЬСТВА; до даты ввода в эксплуатацию прошло менее 6 месяцев.
30 / ТЕХНИЧЕСКАЯ ИНФОРМАЦИЯ 5. ВВОД В ЭКСПЛУАТАЦИЮ Котел введен в эксплуатацию «_________» _____________________20_____г. Название организации __________________________________________________________________________________________ Ф.И.О. специалиста _______________________________________________...
Страница 32 - OOO «Аристон Термо Русь»; Российская Федерация,
ITALIAN DESIGN OOO «Аристон Термо Русь» Российская Федерация, 188676, Ленинградская обл., Всеволожский район, г. Всеволожск, Производственная зона города Всеволожска, ул. Индустриальная д.№9 лит. А Тел. + 7 (812) 332 81 02 Горячая линия +7 (495) 777 33 00 e-mail: service.ru@aristonthermo.com ariston...