Страница 2 - PL - Instrukcje technicznedotycz; Руководство
1 Część ogólna Общие положения <:CJHEG:B>JB=E )*$+* =;DKIFH;C?KC>F*+ =;DKIFH;C?KC>F,+ PL - Instrukcje technicznedotycz ą ce instalacji obs ł ugi RU - Руководство по монтажу и техническому обслуживанию
Страница 4 - Uwagi do instalatora; dotyczącej urządzeń zasilanych gazem
3 Część ogólna Общие положения Uwagi do instalatora Prace instalacyjne i pierwsze zapalenie kotła powinny być powierzone tylko osobom o odpowiednich kwalii kacjach, zgodnie z zaleceniami krajowych norm dotyczących instalacji tego typu urządzeń i w zgodzie z ewentualnymi przepisami władz lokalnych i ...
Страница 5 - Normy bezpieczeństwa; Hałaśliwość w czasie pracy.; Tabliczka z danymi charakterystycznymi; Агрегат должен крепиться на прочную стену,; не подверженную вибрациям
4 Część ogólna Общие положения Normy bezpieczeństwa Znaczenie symboli: Brak przestrzegania tego typu zaleceń pociąga za sobą ryzyko uszkodzeń ciała osób, w określonych sytuacjach mogących prowadzić nawet do ich śmierci.Brak przestrzegania tego typu zaleceń pociąga za sobą ryzyko uszkodzenia, w okreś...
Страница 6 - Для выполнения работ наденьте защитную спец. одежду.; Uszkodzenia ciała na skutek poparzeń.
5 Część ogólna Общие положения страховал внизу. Падение или защемление (раскладные лестницы). Проверьте, чтобы многоярусные лестницы были прочно установлены, чтобы они были расчитаны на соответствующую нагрузку, ступеньки не были повреждены и не были скользкими; лестница должна быть оснащена перилам...
Страница 7 - Panel sterowania; Дисплей
6 Opis urządzenia Описание котла Panel sterowania Панель управления Обозначения:1. Дисплей 2. Кнопка RESET (сброс) 4. Манометр (давление в контуре отопления) 5. Ручка-регулятор для задания температуры в контуре отопления – поворотный переключатель для программирования котла и перемещения по строкам ...
Страница 8 - Wyświetlacz; tylko z podłączonym urządzeniem BUS); Kontrola otoczenia i zdalne sterowanie; auto; Режим работы; Индикация внешних устройств контроля и управления
7 Opis urządzenia Описание котла Wyświetlacz Opis:16. Programowanie tygodniowe Programowanie godzinowe Dzień tygodnia (pon......nie) Wskazywanie strefy związanej z wyświetlaniem/ustawianiem przedziału czasowego (strefa 1 i strefa 2) dla ogrzewania Data i godzina Programowanie godzinowe włączone Cyfr...
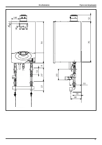
Страница 9 - Wymiary
8 Opis urządzenia Описание котла Wymiary Opis:A = Zasilanie instalacji c.o.C = Przyłącze gazoweE = Powrót z instalacji c.o. Ogólny widok urządzenia Габаритные размеры A. Патрубок подающей линии контура отопления. C. Вход газаE. Патрубок обратной линии контура отопления Размеры 80,5 126 220 220 137 4...
Страница 11 - Технические характеристики
10 Opis urządzenia Описание котла ОБЩИЕ ДАННЫЕ Модель l GENUS PREMIUM HP 45 65 Сертификация CE (№) CE-0063BT3414 Тип котла C13-C33-C43-C53-C83-B23 ЭНЕРГЕТИ ЧЕСКИЕ ХАР АК ТЕРИС ТИКИ Номинальная тепловая мощность для контура отопления, не более/не менее (Hi) кВт 41,0 / 12,3 59,5 / 17,7 Номинальная теп...
Страница 12 - Uwagi poprzedzające prace instalacyjne
11 instalacyjne Установка Uwagi poprzedzające prace instalacyjne Kocioł przeznaczony jest do ogrzewania wody do temperatury niższej niż punkt wrzenia.Jest on zaprojektowany do współpracy z instalacją centralnego ogrzewania i z siecią rozprowadzającą ciepłą wodę użytkową. W obydwu tych przypad-kach p...
Страница 13 - Przyłączenie gazu; KRAJ; Minimalne odległości podczas instalowania; Котел рассчитан на работу со следующими типами газа.; Модель
12 instalacyjne Установка Przyłączenie gazu Kocioł został zaprojektowany do korzystania z gazu należącego do jednej z konkretnych kategorii, jak to pokazano w tabeli poniżej: KRAJ MODEL KATEGORIA PL Genus premium HP 45Genus premium HP 65 II2H3P Należy przecz ytać tabliczki znamionowe umieszczone na ...
Страница 14 - Odprowadzanie skroplin; Odpływ zaworu nadciśnienia (patrz rysunek) powinien by; Połączenia hydrauliczne; Widok hydraulicznych końcówek przyłączeniowych
13 instalacyjne Установка A C E G Opis:A = Zasilanie instalacji c.o.C = Przyłącze gazoweE = Powrót z instalacji c.o. G = Odprowadzanie skroplin Zawór nadciśnienia Odpływ zaworu nadciśnienia (patrz rysunek) powinien by ć podłączony do syfonu odprowadzającego z możliwością kontroli wzrokowej, aby jego...
Страница 15 - Instalacja w przypadku podgrzewanej podłogi; W instalacjach z podgrzewaną podłogą, zamonto; Cechy wody urządzenia
14 instalacyjne Установка Instalacja w przypadku podgrzewanej podłogi W instalacjach z podgrzewaną podłogą, zamonto wać termostat bezpieczeństwa na wejściu ogrzewania podłogowego. Patrz punkt “Podłączenia Elektryczne” przy podłączaniu termostatu.W przypadku zbyt wysokiej temperatury ogrzewania podło...
Страница 16 - Odvod kondenzátu; Do odprowadzania skroplin należy używ; Подсоединение бойлера
15 instalacyjne Установка Odvod kondenzátu Vysoká energetická výkonnost způsobuje vznik kondenzátu, který musí být odstraněn. Za tímto účelem použijte plastovou trubku, aby se uvnitř kotle ne-hromadil žádný kondenzát. Tato trubka musí být připojena k sifónu tak, aby byla stále na očích (kvůli vizuál...
Страница 17 - Schemat obwodów hydraulicznych; ермостат перегрева первичного теплообменника
16 instalacyjne Установка Schemat obwodów hydraulicznych Гидравлическая схема Opis: 1. Odpowietrznik ręczny 2. Palnik 3. Electrod aprindere fl acără 4. Sonda na wyjściu centralnego ogrzewania 5. Czujnik temperatury na powrocie z centralnego ogrzewania 6. Syfon 7. Pompa obiegowa z odpowietrznikiem 8. ...
Страница 18 - Подключение дымохода/воздуховода; − коаксиальная система (по типу «труба в трубе»), предназначенная для; Logika typów połączeń kotła z przewodem kominowym; zarówno doprowadzanie powietrza jak i odprowadzanie spalin,; Używać wyłącznie zestawu przeznaczonego dla wersji z
17 instalacyjne Установка Подключение дымохода/воздуховода − коаксиальная система (по типу «труба в трубе»), предназначенная для подачи воздуха и отвода продуктов сгорания; − раздельная система для отвода продуктов сгорания и подачи воздуха снаружи помещения; − одноканальный дымоход для удаления про...
Страница 19 - Rodzaj układu odprowadzania spalin; MIN; místnosti; Rodzaje systemów zasysania/odprowadzania spalin; S1 – подача воздуха S2 = отвод продуктов сгорания; Типы дымоходов/воздуховодов
18 instalacyjne Установка Rodzaj układu odprowadzania spalin Maksymalna długość kanałów zasysania/odprowadzania spalin Maximální délka sacího (m) Максимальная длина дымохода/воздуховода, м Średnica kanałów (mm) Диаметры труб, мм GENUS PREMIUM HP 45 GENUS PREMIUM HP 65 MIN MAX MIN MAX systemy ółosiow...
Страница 20 - Połączenia elektryczne; Dla większej pewności należ; Подключение к электрической сети
19 instalacyjne Установка Uwaga!Zanim przystąpi się do jakichkolwiek prac wewnątrz kotła należy odłączyć zasilanie elektryczne dwubiegunowym wyłącznikiem zewnętrznym. Połączenia elektryczne Dla większej pewności należ y zlecić na wstępie osobie o odpowiednich kwalifi kacjach staranną kontrolę instala...
Страница 21 - Podłączanie urządzeń zewnętrznych; Aby uzysk; karta bus; Подключение дополнительных устройств; Предохранительный термостат для кабельных систем напольного
20 instalacyjne Установка Podłączanie urządzeń zewnętrznych Aby uzysk ać dostęp do podłączeń urządzeń zewnętrznych, należy wykonać następujące czynności: - odłączyć kocioł od zasilania elektrycznego, - zdjąć osłonę z panelu kontrolnego, - obrócić panel sterowania pociągając go do przodu, - odkręcić ...
Страница 22 - Schemat elektryczny; Należ; Электрическая схема; ПРОИЗВО; Display; SB
21 instalacyjne Установка Schemat elektryczny Należ y zlecić dla większej pewności staranną kontrolę instalacji elektrycznej osobie posiadającej odpowiednie kwalifi kacje.Producent nie ponosi żadnej odpowiedzialności za szkody spowodowane brakiem uziemienia całej instalacji kotła lub nieprawidłowości...
Страница 23 - Przyrządy do pojedynczej instalacji; Rama podtrzymująca kocioł / Опорная рама котла; Аксессуары для одной установки
22 Uruchomienie Пуск в эксплуатацию Przyrządy do pojedynczej instalacji Rama podtrzymująca kocioł / Опорная рама котла Pionowy pręt ramyВертикальный шток рамы Nóżka ramyНожка рамы Strzemię podtrzymujące kociołСкоба опорной рамы Zestaw zaworówКомплект кранов Zestaw zawierający system do podłączenia z...
Страница 25 - C XX; Estate
24 Uruchomienie Пуск в эксплуатацию Procedura zapalania palnika Nacisnąć przycisk ON/OFF na pane-lu sterowania, aby włączyć kocioł, na wyświetlaczu pojawi się: Tryb działania zostanie wyświetlony w postaci trzech cyfr przedstawionych na powyższym rysunku: pierwsza cyfra wskazuje tryb działania 0 XX ...
Страница 26 - Pierwsze włączenie kotła; Funkcja odpowietrzania; Opis funkcji; Описание функций
25 Uruchomienie Пуск в эксплуатацию Pierwsze włączenie kotła 1. Upewnić się, że: - zawór gazu jest zamknięty; - podłączenie do sieci elektrycznej zostało wykonane we właściwy sposób. Zawsze należy sprawdzić czy zielono-żółty przewód uziemienia jest podłączony do sprawnej instalacji uziemienia; - pod...
Страница 27 - Aby w; Maksymalną lub minimalną moc kotła można wymusić; Режим “Трубочист”; Moc minimalna
26 Uruchomienie Пуск в эксплуатацию Funkcja kominiarza Karta elektroniczna umożliwia wymuszenie maksymalnej lub minimalnej mocy urządzenia. Jeśli włączy się funkcję kominiarza, poprzez wciśnięcie przycisku Reset na 5 sekund, kocioł zostanie zmuszony do działania na maksymalnej mocy ogrzewania, a na ...
Страница 28 - Ważne: nie wymontowyw; Analiza spalania przy minimalnym przepływie gazu
27 Uruchomienie Пуск в эксплуатацию Ważne: nie wymontowyw ać tłumika Uwaga: Jeśli komora spalania jest otwarta, wartość CO2 obniża się o 0,3%. Jeśli wartości nie odpowiadają wartościom podanym w tabeli, należy dokonać regulacji według poniższej instrukcji. - przekręcić regulator ciśnienia zaworu gaz...
Страница 29 - menu podrzędne; Вход в меню и изменение настроек
28 Uruchomienie Пуск в эксплуатацию menu podrzędne 3 - parametr 1 Regulacja maksymalnej mocy ogrzewania menu podrzędne 2 - parametr 0 Regulacja zapłonu wolnego menu podrzędne 3 - parametr 5 Regulacja opóźnienia zapłonu ogrzewania Regulacja maksymalnej mocy ogrzewania Ten parametr ogranicza moc użyte...
Страница 30 - Пример 1; режиме AUTO это достигается с помощью сдвига; Пример 3; Funkcja Auto; wić poszczególne parametry (patrz menu
29 Uruchomienie Пуск в эксплуатацию Inverno Режим AUTO (автоматический режим) В данном режиме котел автоматически подстраивает рабочие параметры (температуру в контуре отопления и мощность котла) под условия помещения, чтобы обеспечивать максимальный уровень комфорта, поддерживая постоянную температ...
Страница 31 - Kocioł jest zabezpieczony przed zakłóceniami, jakie mogą wy; do; Err
30 Systemy zabezpieczeń kotła Защитные функции Systemy zabezpieczeń kotła Kocioł jest zabezpieczony przed zakłóceniami, jakie mogą wy stąpić podczas jego funkcjonowania, dzięki systemowi kontroli wewnętrznych realizowanych przez układ zawierający mikroprocesor, który może doprowadzić, jeśli okaże si...
Страница 32 - Zbiorcza tabela kodów błędów; esta; Мультизональное регулирование
31 Systemy zabezpieczeń kotła Защитные функции Zbiorcza tabela kodów błędów Таблица кодов неисправностей Obwód główny wyświetlacz opis 1 01 Przegrzanie 1 03 Niewystarczający 1 041 051 061 071 10 Uszkodzony czujnik ogrzewania 1 11 Niewystarczający Obieg (wymagane uzupełnienie) 1 12 Uszkodzony czujnik...
Страница 34 - Настройки, регулировки и диагностика; Dostęp do menu ustawień - regulacji - diagnostyki
33 menu ustawień - regulacji - diagnostyki Настройки, регулировки и диагностика Dostęp do menu ustawień - regulacji - diagnostyki Kocioł pozwala na kompletne zarządzanie systemem ogrzewania i produkcji ciepłej wody użytkowej. Nawigacja wewnątrz menu umożliwia personalizację systemu kotła + połączony...
Страница 35 - Encoder
34 menu ustawień - regulacji - diagnostyki Настройки, регулировки и диагностика Na wyświetlaczu informacje dotyczące menu i poszczególnych parametrów wskazywane są w postaci cyfr oraz tekstu, który można prz ewijać, co obrazuje poniższy rysunek. Aby uzyskać dostęp do menu, należy otworzyć drzwiczki ...
Страница 37 - Меню; aaЗаво; См. «Руководство по эксплуатации»; Сервисный код; ОСНОВНЫЕ УСТАНОВКИ КОТЛА; Термостат; ПАРАМЕТРЫ КОНТУРА ОТОПЛЕНИЯ - ЧАСТЬ 1; Режим защиты от частых включений
36 menu ustawień - regulacji - diagnostyki Настройки, регулировки и диагностика Меню По дменю Параме тр Описание Диапазон aaЗаво дск а я ус тановк а 0 ЯЗЫК, ВРЕМЯ, ДАТА См. «Руководство по эксплуатации» 1 НАСТРОЙКИ ТАЙМЕРА ПРОГРАММАТОРА См. «Руководство по эксплуатации» 2 НАСТРОЙКИ КОТЛА 2 1 Сервисн...
Страница 39 - Контроль температуры по времени суток; КОНТУР ГОРЯЧЕГО ВО
38 menu ustawień - regulacji - diagnostyki Настройки, регулировки и диагностика 2 4 ПАРАМЕТРЫ КОНТУРА ОТОПЛЕНИЯ - ЧАСТЬ 1 2 4 0 НЕ ПОДЕРЖИВАЕТСЯ 2 4 1 НЕ ПОДЕРЖИВАЕТСЯ 2 4 2 НЕ ПОДЕРЖИВАЕТСЯ 2 4 3 Поствентиляция после работы в режиме отопления 0 = ВЫКЛЮЧЕНО1 = ВКЛЮЧЕНО 0 2 4 4 Период ожидания (AUTO)...
Страница 41 - СОЛНЕЧНЫЙ КОЛЛЕКТОР И НАКОПИТЕЛЬНЫЙ БОЙЛЕР; Установленная температура воды в бойлере; СПЕЦИАЛЬНЫЕ УСТАНОВКИ
40 menu ustawień - regulacji - diagnostyki Настройки, регулировки и диагностика 3 СОЛНЕЧНЫЙ КОЛЛЕКТОР И НАКОПИТЕЛЬНЫЙ БОЙЛЕР 3 0 ОСНОВНЫЕ УСТАНОВКИ 3 0 0 Установленная температура воды в бойлере от 40 до 60 (°C) Активное состояние с KIT System Plus, подсоединенной к бойлеру с помощью зонда NTC 3 0 1...
Страница 43 - ПАРАМЕТРЫ ЗОНЫ 1; ДРУГИЕ ПАРАМЕТРЫ; Выбор типа терморегуляции
42 menu ustawień - regulacji - diagnostyki Настройки, регулировки и диагностика 4 ПАРАМЕТРЫ ЗОНЫ 1 4 0 УСТАНОВКА ТЕМПЕРАТУРЫ В ЗОНЕ 1 4 0 0 Установка дневной температуры - доступно только если подключено дополнительное устройство посредством шины передачи данных от 16 до 30 (°C) 19 Установленная дне...
Страница 45 - ДИАГНОСТИКА; ДРУГИЕ ПАРАМЕТРЫ ЗОНЫ 2
44 menu ustawień - regulacji - diagnostyki Настройки, регулировки и диагностика 4 3 ДИАГНОСТИКА Только отображение параметров 4 3 0 Комнатная температура в ЗОНЕ 1 - доступно если подсоединено дополнительное устройство посредством шины передачи данных 4 3 1 Температура в подающей линии контура отопле...
Страница 47 - СОЛНЕЧНЫЙ КОЛЛЕКТОР И БОЙЛЕР
46 menu ustawień - regulacji - diagnostyki Настройки, регулировки и диагностика 5 3 3 Температура в подающей линии контура отопления в ЗОНЕ 2При включенной терморегуляции отображается расчетная температура теплоносителяПри выключенной терморегуляции отображается установленная температура теплоносите...
Страница 49 - Количество подпиток; НЕ ПО; Последние 10 неисправностей; СЛУЖБА СЕРВИСА; Внесение «Названия службы сервиса»; Prycisk; Naciskając Przycisk I; ewijać różne informacje.; Lista wy; Godzina dzień; Информация, выводимая на дисплей
48 menu ustawień - regulacji - diagnostyki Настройки, регулировки и диагностика 8 6 4 Количество подпиток 8 6 5 Продолжительность работы в режиме отопления 8 7 НЕ ПО ДДЕРЖИВАЕТСЯ 8 8 Ж УРНАЛ НЕИСПРАВНОСТЕЙ 8 8 0 Последние 10 неисправностей от E00 до E99 Эта функция позволяет увидеть последние 10 неи...
Страница 50 - Instrukcja otwierania obudowy kotła oraz kontroli jego wnętrza; Przed podjęciem jakichkolwiek prac przy kotle, należy go odłączy; Доступ к внутренним элементам; Ослабьте два винта (b), потяните их вперед и снимите переднюю; Uwagi ogólne
49 Okresowa obsługa i konserwacja Техническое обслуживание Instrukcja otwierania obudowy kotła oraz kontroli jego wnętrza Przed podjęciem jakichkolwiek prac przy kotle, należy go odłączy ć od zasilania elektrycznego za pomocą zewnętrznego wyłącznika dwubiegunowego oraz zamknąć zawór gazu. Aby uzyska...
Страница 52 - Opróżnienie instalacji ciepłej wody użytkowej
51 Okresowa obsługa i konserwacja Техническое обслуживание Zaleca się stosowanie produktów zapobiegających zamarzaniu zawierających GLIKOLE typu PROPYLENOWEGO, które nie maja właściwości korodujących ( jak na przykład CILLICHEMIE CILLIT CC 45, który nie jest toksyczny i spełnia jednocześnie kilka fu...