Акустика VITEK VT-4023 - инструкция пользователя по применению, эксплуатации и установке на русском языке. Мы надеемся, она поможет вам решить возникшие у вас вопросы при эксплуатации техники.
Если остались вопросы, задайте их в комментариях после инструкции.
"Загружаем инструкцию", означает, что нужно подождать пока файл загрузится и можно будет его читать онлайн. Некоторые инструкции очень большие и время их появления зависит от вашей скорости интернета.

7
Активная акустическая система 5.1
Перед установкой устройства внимательно прочитайте данную инструкцию.
КОМПЛЕКТ ПОСТАВКИ
В комплект акустической системы входят следующие компоненты:
1. Сабвуфер
2. Пять сателлитов с проводами
3. Три аудиокабеля
4. Руководство по эксплуатации
ОПИСАНИЕ УСТРОЙСТВА
(РИСУНОК 1)
1. Сабвуфер
2. Сателлиты (колонки)
3. Центральная колонка
4. Аудиокабель
5. Ручка громкости передних колонок
6. Ручка громкости центральной колонки
7. Ручка громкости задних колонок
8. Ручка громкости сабвуфера
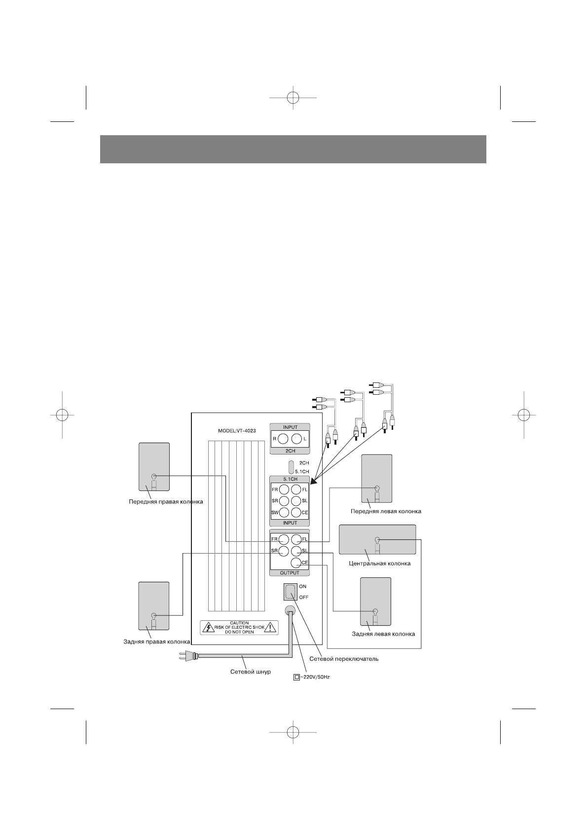
ПОДКЛЮЧЕНИЕ
РУССКИЙ
4023.qxd 12.09.2005 10:17 Page 7