Акустика Sven HT-210 - инструкция пользователя по применению, эксплуатации и установке на русском языке. Мы надеемся, она поможет вам решить возникшие у вас вопросы при эксплуатации техники.
Если остались вопросы, задайте их в комментариях после инструкции.
"Загружаем инструкцию", означает, что нужно подождать пока файл загрузится и можно будет его читать онлайн. Некоторые инструкции очень большие и время их появления зависит от вашей скорости интернета.

UKR
19
HT-210
Керівництво з експлуатації
•
Для більш точного сприйняття бажано, щоб високочастотні твітери розташовувалися на од-
ному рівні з вухом слухача.
•
Не рекомендується встановлювати колонки в ніші. Таке розміщення може спричинити вплив
на відтворення звуку, особливо у низькочастотному діапазоні.
•
Сабвуфер випромінює ненапрямлений звук, тому його можна розташувати в будь-якому
місці кімнати, в якому сабвуфер звучатиме якнайкраще.
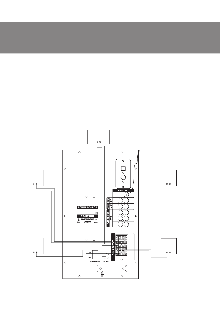
Підключення колонок до сабвуфера
•
Підключіть колонки до аудіовходу AUDIO OUTPUT
p
сабвуфера, як показано на мал. 6, ви-
користовуючи акустичні кабелі з комплекту. Зверніть увагу, що плюсові дроти колонок повинні
бути з’єднані з плюсовими клемами сабвуфера (+ → +), а мінусові дроти колонок — з мінусо-
вими клемами сабвуфера (– → –).
Права
фронтальна
колонка
Ліва
фронтальна
колонка
Ліва
тилова
колонка
Права
тилова
колонка
Центральна
колонка
FM-антена
Мал. 6. Схема підключення колонок
OPTICAL
INPUT
COAXIAL
INPUT
L
L
F L
C E N
S L
R
R
S W
F R
S R
F R
F L
C E N
S R
S L
+
-
R A D I O A N T
P
C
A
U
X
D
V
D
A
U
D
IO
I
N
P
U
T
A
U
D
IO
I
N
P
U
T
A
U
D
IO
O
U
T
P
U
T
A C I N P U T
P O W E R S W I T C H
O N
O F F
R A D I O A N T
F M
A N T
AC IN: 230V 50Hz
Содержание
- 3 Активная 5.1 акустическая система; Внимание! Внутри корпуса на элементах без изоляции
- 4 a b; f g h
- 5 Пульт дистанционного управления
- 6 Установка батареек в пульт ДУ; Откройте отсек для батареек на задней стороне пульта ДУ.; ПОДГОТОВКА И ПОРЯДОК РАБОТЫ; размещайте АС на расстоянии не менее 20 см от стен.
- 7 лись на одном уровне с ухом слушателя.; Подключение колонок к сабвуферу; Подключите колонки к аудиовходу AUDIO OUTPUT
- 8 Установка и подключение FM-антенны; Вставьте входящую в комплект комнатную FM-антенну в гнездо FM ANT; Подготовка к работе; Cигнальный кабель; Рис. 7. Схемы подключения к источникам аудиосигнала; Cигнальные кабели; звуковая карта; Подключение
- 9 Включение системы; Kоаксиальный кабель
- 10 Режим проигрывателя
- 11 Режим Bluetooth
- 12 УСТРАНЕНИЕ НЕИСПРАВНОCТЕЙ
- 13 Характеристики и единицы измерения; SVEN; . ТЕХНИЧЕСКИЕ ХАРАКТЕРИСТИКИ
- 40 Automatic Voltage Regulator; Multimedia Speaker System; ® Registered Trademark of Oy SVEN