Страница 3 - Содержание; Предупреждения относительно безопасного пользования 12
RU 3 Содержание ПЕРЕД ИСПОЛЬЗОВАНИЕМ ....................................... 6 Общие предостережения ....................................................... 6 Старые и вышедшие из строя холодильники ....................... 11 Предупреждения относительно безопасного пользования 12 Установка и эксплуа...
Страница 5 - МЫ ДУМАЕМ О ВАС; Сервис
RU 5 МЫ ДУМАЕМ О ВАС Благодарим вас за приобретение прибора AEG. Вы выбрали изделие, за которымстоят десятилетия профессионального опыта и инноваций.Уникальное и стильное, оно создавалось с заботой о вас. Поэтому когда бы вы нивоспользовались им, вы можете быть уверены: результаты всегдабудут превос...
Страница 6 - Общие предостережения; ПЕРЕД ИСПОЛЬЗОВАНИЕМ
RU 6 Общие предостережения Пожалуйста, внимательно ознакомьтесь с этой инструкцией по эксплуатации до установки и использования холодильника. Изготовитель не несёт ответственности в случае возникновения повреждений, связанных с неправильным использованием прибора.Следуйте инструкции и храните её в б...
Страница 10 - Обслуживание
RU 10 Обслуживание • Для ремонта бытового прибора обращайтесь в Авторизованный сервисный центр. Используйте только оригинальные запасные части. • Обратите внимание, что самостоятельный или непрофессионально выполненный ремонт может быть небезопасным, а также это приведет к аннулированию гарантии.
Страница 11 - Старые и вышедшие из строя холодильники
RU 11 Старые и вышедшие из строя холодильники • Если Ваш холодильник имеет замок, сломайте или снимите его, прежде чем выбрасывать холодильник, поскольку внутри может оказаться запертым ребенок, и это может привести к несчастному случаю. • Старые морозильные камеры и холодильники содержат изоляционн...
Страница 13 - До начала эксплуатации холодильника; Внутреннее освещение; Существует риск поражения электрическим током.
RU 13 • Холодильник должен находиться минимум в 50 см от кухонных плит, варочных панелей, газовых духовых шкафов обогревателей, а также на расстоянии минимум 5 см от электрических духовых шкафов. • Холодильник ни при каких обстоятельствах не должен использоваться на открытом воздухе или оставляться ...
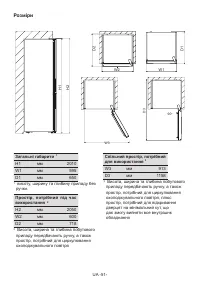
Страница 14 - Размеры
RU 14 Размеры Общие габариты 1 H1 мм 2010 W1 мм 595 D1 мм 650 1 высота, ширина и глубина прибора без ручки. Пространство, требуемое при использовании 2 H2 мм 2050 W2 мм 600 D2 мм 718 2 Высота, ширина и глубина бытового прибора включают в себя ручку, а также пространство, необходимое для циркуляции о...
Страница 15 - Информация о технологии охлаждения нового поколения
RU 15 Информация о технологии охлаждения нового поколения В холодильниках с охлаждением нового поколения применяется другая рабочая система, чем в холодильниках со статической системой. В обычных холодильниках влажный воздух, попадающий в него, а также водяной пар из пищи образует иней в морозильной...
Страница 16 - РАЗЛИЧНЫЕ ФУНКЦИИ И ВОЗМОЖНОСТИ; Дисплей и панель управления
RU 16 РАЗЛИЧНЫЕ ФУНКЦИИ И ВОЗМОЖНОСТИ Дисплей и панель управления 1. Экран установки значений настроек холодильного отделения. 2. Индикатор режима интенсивного охлаждения. 3. Экран установки значений настроек морозильной камеры. 4. Индикатор режима интенсивной заморозки. 5. Символ экономичного режим...
Страница 17 - Управление холодильником; Режим интенсивной заморозки; Режим интенсивного охлаждения; Во время этого режима:
RU 17 Управление холодильником Режим интенсивной заморозки Как он применяется? Нажмите и удерживайте кнопку режима морозильной камеры, пока не увидите на дисплее символ интенсивной заморозки. Будет подан звуковой сигнал. Режим будет включен. Во время этого режима: • Можно настроить температуру холод...
Страница 18 - Экономичный режим
RU 18 Экономичный режим Как он применяется? • Нажмите и удерживайте кнопку «Режим», пока не появится символ режима «Экономичный». • Если в течение 1 секунды не будет нажата какая-либо кнопка. Режим будет включен. Символ режима «Экономичный» загорится 3 раза. После активации режима будет подан звуков...
Страница 19 - Режим «Отпуск»; Режим охлаждения напитков; Когда он применяется?
RU 19 Режим «Отпуск» Как он применяется? • Нажмите и удерживайте кнопку «Режим», пока не появится символ режима «Отпуск». • Если в течение 1 секунды не будет нажата какая-либо кнопка. Режим будет включен. Символ режима «Отпуск» загорится 3 раза. После активации режима будет подан звуковой сигнал. • ...
Страница 20 - Функции режима защиты от детей; Режим заставки
RU 20 Функции режима защиты от детей Когда он применяется? Режим защиты от детей нужен для того, чтобы дети не играли с кнопками и не меняли установленные настройки. Включение режима защиты от детей Нажмите и удерживайте одновременно кнопки холодильного отделения и морозильной камеры в течение 5 сек...
Страница 21 - Функция оповещения об открытой дверце; Настройки температуры холодильной камеры
RU 21 Функция оповещения об открытой дверце Если дверца морозильной камеры открыта дольше 2 минут, бытовой прибор подаст двойной звуковой сигнал, и будет мигать значок открытой дверцы. Настройки температуры холодильной камеры • Исходная температура на индикаторе настроек холодильной камеры: +4 °C. •...
Страница 22 - Настройки температуры морозильной камеры; отделении
RU 22 Настройки температуры морозильной камеры • Исходная температура на индикаторе настроек морозильной камеры: -18 °C. • Нажмите кнопку параметров морозильной камеры один раз. • При первом нажатии этой кнопки на экране отобразится последнее заданное значение. • При каждом последующем нажатии этой ...
Страница 23 - Предупреждения по поводу настройки температуры; Важные инструкции по установке
RU 23 Предупреждения по поводу настройки температуры • В целях эффективности не рекомендуется использовать холодильник при температуре окружающей среды ниже 10 °C. • Настройку температуры производят в зависимости от частоты открывания дверцы и количества хранимых внутри продуктов. • Не начинайте вып...
Страница 24 - Принадлежности; Ящик морозильной камеры; Извлечение ящика морозильной камеры; Полка охладителя; Не помещайте в отделение продукты, которые вы хотите
RU 24 Принадлежности Ящик морозильной камеры Ящик морозильной камеры позволяет размещать продукты для долговременного хранения. Извлечение ящика морозильной камеры • Выдвиньте ящик до упора. • Приподнимите переднюю часть ящика и извлеките его. ! Для установки ящика на направляющие повторите операцию...
Страница 25 - Внешний вид и текстовое описание принадлежностей может
RU 25 Регулятор влажности Если регулятор влажности установить в закрытое положение, свежие фрукты и овощи будут храниться дольше. В случае, когда отделение для фруктов и овощей заполнено до отказа, диск регулирования свежести, расположенный на передней стенке контейнера, следует открыть. Благодаря э...
Страница 26 - ОЧИСТКА И ОБСЛУЖИВАНИЕ; Убедитесь, что Вы выключили холодильник из сети при его; Размораживание; Замена светодиодной подсветки
RU 26 ОЧИСТКА И ОБСЛУЖИВАНИЕ • Убедитесь, что Вы отключили холодильник от сети перед его очисткой. • При мытье холодильника не лейте на него воду. • Вы можете протереть внутренние и внешние стороны мягкой тканью или губкой с использованием теплой мыльной воды. • Каждую деталь следует очистить мыльно...
Страница 27 - Холодильная камера; РАСПРЕДЕЛЕНИЕ ПРОДУКТОВ
RU 27 Холодильная камера • Отделение для свежих продуктов помечено символом (на табличке с техническими данными) • Для нормальных условий эксплуатации значение температуры холодильной камеры достаточно установить на 4 °C. • Для снижения влажности и, соответственно, образования льда никогда не ставьт...
Страница 28 - Важное примечание
RU 28 ПРИМЕЧАНИЕ: Картофель, овощи и чеснок не должны храниться в холодильнике. Морозильная камера • Морозильная камера обозначена так: . • Отделение глубокой заморозки используется для хранения замороженных продуктов в течение длительного времени и для изготовления льда. • Для достижения максимальн...
Страница 31 - Перемещать холодильник в вертикальном положении.; Перевешивание дверцы; ДОСТАВКА И ИЗМЕНЕНИЕ МЕСТА УСТАНОВКИ
RU 31 • Для повторной транспортировки можно хранить оригинальную упаковку и пенопласт (по желанию). • Упаковать холодильник в толстую упаковку, обернуть лентой и прочными веревками и следовать инструкциям по транспортировке, содержащимся на упаковке. • Снять подвижные детали (полки, вспомогательные ...
Страница 32 - Проверьте предупреждения; ПЕРЕД ТЕМ, КАК ОБРАТИТЬСЯ В
RU 32 Проверьте предупреждения В случае недостаточной температуры в холодильной или морозильной камере либо той или иной неисправности холодильник генерирует предупреждения. ПЕРЕД ТЕМ, КАК ОБРАТИТЬСЯ В авторизованный сервисный центр. ЧАСТЬ 6. КОД НЕИСПРАВ- НОСТИ ЗНАЧЕНИЕ ПРИЧИНА РЕКОМЕНДАЦИИ ПО УСТР...
Страница 35 - Если дверцы не открываются и не закрываются должным образом
RU 35 Если дверцы не открываются и не закрываются должным образом; • Не мешают упаковки с продуктами закрытию дверцы? • Правильно ли установлены дверные отсеки, полочки и ящички? • Не повреждены ли прокладки дверцы? • Стоит ли холодильник на ровной поверхности? Если края холодильного шкафа, с которы...
Страница 36 - Рекомендации по энергосбережению
RU 36 Рекомендации по энергосбережению 1– Установите прибор в прохладном, хорошо вентилируемом помещении, куда не попадают прямые солнечные лучи, вдали от источников тепла (батарей отопления, плиты и т.д.). В противном случае необходимо использовать изоляционную панель. 2– Подождите, пока подогретые...
Страница 37 - ДЕТАЛИ И КАМЕРЫ ХОЛОДИЛЬНИКА
RU 37 ДЕТАЛИ И КАМЕРЫ ХОЛОДИЛЬНИКА A) Отделение холодильника B) Отделение морозильника 1. Подставка для яиц 2. Полки холодильника 3. Oхладитель * 4. Крышка контейнера для фруктов и овощей 5. Контейнер для фруктов и овощей 6. Верхняя корзина морозильной камеры 7. Средние корзины морозильной камеры 8....